ELECTRIC DISCHARGE MACHINING & PREFORM FOR PRECISION STAMPING

INTRODUCTION
Core competencies and promises:


- Professionalism
- Dedication
- Customized service
- Customer focus. We work relentlessly to provide better solutions for our customers.
- Stable quality. We keep stable quality that contributes to our customer's brand reputation.
- On-time delivery. We provide lean production to our customers.
- Stock availability. We find solutions for each and every customer's requirement.
- Comprehensive specifications. We work with customers and make products they require according to their specifications.
- Sustainable capacity. We grow together with our customers.
- Continuous research and development. We strive for leadership in industry specific solutions.
In order to solve the corrosion problem of cemented carbide, our experts collaborated with branded WEDM machine manufacturers to create the new corrosion resistant carbide grades - NF series. Corrosion resistance concept works in the beginning of grade preparation by mixing the powder with corrosion inhibitor elements. Once the NF grade carbide contacts with dielectric substance (e.g. water, lubricant etc.), a thin layer of oxide forms on the surface of the carbide for protection. It will isolate the carbide from the outside environment and thus prevent it from further corrosion. The protection is sustainable and continuous throughout the whole machining processing.
The NF series corrosion free grade has the below advantages:
- It is able to sustain in more extreme dielectric medium condition in the WEDM process, thus it helps to eliminate corrosion factor due to poor filtration and helps to cut down filtration costs.
- It reduces extra prevention measures of avoiding carbide corrosion, which may affect the quality of work pieces and therefore saves costs.
- It maintains a good surface quality after machining and improves tool life.
CARBIDE BLOCKS FOR WEDM
NF Grade sintered carbide blocks for EDM


L | Tol. | W | Tol. | T | Grade | ||
---|---|---|---|---|---|---|---|
mm | mm | mm | mm | mm | Submicron [0.5-0.8µm] corrosion free | Medium [1.3-2.5µm] corrosion free | Coarse [2.5-6.0µm] corrosion free |
100 | +0/+1.0 | 100 | +0/+1.0 | 1-60 | ⬤ | ⬤ | ⬤ |
150 | +0/+1.5 | ⬤ | ⬤ | ⬤ | |||
200 | +0/+1.5 | ⬤ | ⬤ | ⬤ | |||
105 | +0/+1.0 | 105 | +0/+1.0 | 1-60 | ⬤ | ⬤ | ⬤ |
150 | +0/+1.5 | ⬤ | ⬤ | ⬤ | |||
200 | +0/+1.5 | ⬤ | ⬤ | ⬤ | |||
150 | +0/+1.5 | 105 | +0/+1.0 | 1-60 | ⬤ | ⬤ | ⬤ |
150 | +0/+1.5 | 20-60 | ⬤ | ⬤ | ⬤ | ||
200 | +0/+1.5 | 20-60 | ⬤ | ⬤ | ⬤ | ||
200 | +0/+1.5 | 200 | +0/+1.5 | 20-60 | ⬤ | ⬤ |
Sintered carbide blocks for EDM


L. | Tol. | W | Tol. | T | Grade | ||||
---|---|---|---|---|---|---|---|---|---|
mm | mm | mm | mm | mm | Ultrafine [0.2-0.5µm] | Submicron [0.5-0.8µm] | Medium [1.3-2.5µm] | Fine [0.8-1.3µm] | Coarse [2.5-6.0µm] |
100 | +0/+1.0 | 100 | +0/+1.0 | 1-20 | ⬤ | ⬤ | ⬤ | ⬤ | ⬤ |
21-60 | ⬤ | ⬤ | ⬤ | ⬤ | |||||
150 | +0/+1.5 | 1-10 | ⬤ | ⬤ | ⬤ | ⬤ | ⬤ | ||
11-60 | ⬤ | ⬤ | ⬤ | ⬤ | |||||
200 | +0/+1.5 | 1-10 | ⬤ | ⬤ | ⬤ | ⬤ | ⬤ | ||
11-60 | ⬤ | ⬤ | ⬤ | ⬤ | |||||
105 | +0/+1.0 | 105 | +0/+1.0 | 1-20 | ⬤ | ⬤ | ⬤ | ⬤ | ⬤ |
21-60 | ⬤ | ⬤ | ⬤ | ⬤ | |||||
150 | +0/+1.5 | 1-10 | ⬤ | ⬤ | ⬤ | ⬤ | ⬤ | ||
1-60 | ⬤ | ⬤ | ⬤ | ⬤ | |||||
200 | +0/+1.5 | 1-10 | ⬤ | ⬤ | ⬤ | ⬤ | ⬤ | ||
11-60 | ⬤ | ⬤ | ⬤ | ⬤ | |||||
150 | +0/+1.5 | 105 | +0/+1.0 | 1-20 | ⬤ | ⬤ | ⬤ | ⬤ | ⬤ |
21-60 | ⬤ | ⬤ | ⬤ | ⬤ | |||||
150 | +0/+1.5 | 20-60 | ⬤ | ⬤ | ⬤ | ⬤ | |||
200 | +0/+1.5 | 20-60 | ⬤ | ⬤ | ⬤ | ⬤ | |||
200 | +0/+1.5 | 200 | +0/+1.5 | 20-60 | ⬤ | ⬤ | ⬤ |
Block Thickness Tolerance Table

CARBIDE RODS FOR HIGH SPEED STAMPING
Sintered Rods For High Speed Stamping


OD | L | OD Tol. | Grade | ||||
---|---|---|---|---|---|---|---|
mm | mm | mm | Ultrafine [0.2-0.5µm] | Submicron [0.5-0.8µm] | Medium [1.3-2.5µm] | Fine [0.8-1.3µm] | Coarse [2.5-6.0µm] |
2.0 | 330 | +0.2/+0.4 | |||||
3.0 | 330 | +0.2/+0.4 | ⬤ | ||||
3.5 | 330 | +0.2/+0.4 | |||||
4.0 | 330 | +0.2/+0.4 | ⬤ | ||||
4.5 | 330 | +0.2/+0.4 | |||||
5.0 | 330 | +0.2/+0.4 | ⬤ | ||||
5.5 | 330 | +0.2/+0.4 | |||||
6.0 | 330 | +0.2/+0.4 | ⬤ | ⬤ | ⬤ | ⬤ | ⬤ |
6.5 | 330 | +0.2/+0.4 | ⬤ | ⬤ | ⬤ | ⬤ | |
7.0 | 330 | +0.2/+0.4 | ⬤ | ⬤ | ⬤ | ⬤ | |
7.5 | 330 | +0.2/+0.5 | ⬤ | ⬤ | ⬤ | ⬤ | |
8.0 | 330 | +0.2/+0.5 | ⬤ | ⬤ | ⬤ | ⬤ | ⬤ |
8.5 | 330 | +0.2/+0.5 | ⬤ | ⬤ | ⬤ | ⬤ | |
9.0 | 330 | +0.2/+0.5 | ⬤ | ⬤ | ⬤ | ⬤ | |
9.5 | 330 | +0.2/+0.5 | ⬤ | ⬤ | ⬤ | ⬤ | |
10.0 | 330 | +0.2/+0.5 | ⬤ | ⬤ | ⬤ | ⬤ | ⬤ |
10.5 | 330 | +0.2/+0.5 | ⬤ | ⬤ | ⬤ | ⬤ | |
11.0 | 330 | +0.2/+0.5 | ⬤ | ⬤ | ⬤ | ⬤ | |
11.5 | 330 | +0.2/+0.5 | ⬤ | ⬤ | ⬤ | ⬤ | |
12.0 | 330 | +0.3/+0.6 | ⬤ | ⬤ | ⬤ | ⬤ | ⬤ |
13.0 | 330 | +0.3/+0.6 | ⬤ | ⬤ | ⬤ | ⬤ | |
14.0 | 330 | +0.3/+0.6 | ⬤ | ⬤ | ⬤ | ⬤ | ⬤ |
15.0 | 330 | +0.3/+0.6 | ⬤ | ⬤ | ⬤ | ⬤ | |
16.0 | 330 | +0.3/+0.6 | ⬤ | ⬤ | ⬤ | ⬤ | ⬤ |
17.0 | 330 | +0.3/+0.7 | ⬤ | ⬤ | ⬤ | ⬤ | |
18.0 | 330 | +0.3/+0.7 | ⬤ | ⬤ | ⬤ | ⬤ | ⬤ |
19.0 | 330 | +0.3/+0.7 | ⬤ | ⬤ | ⬤ | ⬤ | |
20.0 | 330 | +0.3/+0.7 | ⬤ | ⬤ | ⬤ | ⬤ | ⬤ |
24.0 | 330 | +0.4/+0.8 | ⬤ | ⬤ | ⬤ | ⬤ | |
25.0 | 330 | +0.4/+0.8 | ⬤ | ⬤ | ⬤ | ⬤ | |
32.0 | 330 | +0.7/+1.3 | ⬤ | ⬤ | ⬤ | ⬤ | |
42.0 | 330 | +0.7/+1.3 | ⬤ | ⬤ | ⬤ | ⬤ |
Production range: Ø1-Ø80, other dimensions are upon request.
Length tolerance: +1mm/+1.5mm.
H6 Ground Solid Rods


OD | L | OD Tol. | Grade | ||||
---|---|---|---|---|---|---|---|
mm | mm | mm | Ultrafine [0.2-0.5µm] | Submicron [0.5-0.8µm] | Medium [1.3-2.5µm] | Fine [0.8-1.3µm] | Coarse [2.5-6.0µm] |
2.0 | 330 | +0.006/-0 | |||||
3.0 | 330 | +0.006/-0 | ⬤ | ||||
3.5 | 330 | +0.008/-0 | ⬤ | ||||
4.0 | 330 | +0.006/-0 | ⬤ | ||||
4.5 | 330 | +0.006/-0 | ⬤ | ||||
5.0 | 330 | +0.006/-0 | ⬤ | ||||
5.5 | 330 | +0.006/-0 | ⬤ | ||||
6.0 | 330 | +0.006/-0 | ⬤ | ⬤ | ⬤ | ⬤ | ⬤ |
6.5 | 330 | +0.009/-0 | ⬤ | ⬤ | ⬤ | ⬤ | ⬤ |
7.0 | 330 | +0.009/-0 | ⬤ | ⬤ | ⬤ | ⬤ | ⬤ |
7.5 | 330 | +0.009/-0 | ⬤ | ⬤ | ⬤ | ⬤ | ⬤ |
8.0 | 330 | +0.009/-0 | ⬤ | ⬤ | ⬤ | ⬤ | ⬤ |
8.5 | 330 | +0.009/-0 | ⬤ | ⬤ | ⬤ | ⬤ | ⬤ |
9.0 | 330 | +0.009/-0 | ⬤ | ⬤ | ⬤ | ⬤ | ⬤ |
9.5 | 330 | +0.009/-0 | ⬤ | ⬤ | ⬤ | ⬤ | ⬤ |
10.0 | 330 | +0.009/-0 | ⬤ | ⬤ | ⬤ | ⬤ | ⬤ |
10.5 | 330 | +0.011/-0 | ⬤ | ⬤ | ⬤ | ⬤ | ⬤ |
11.0 | 330 | +0.011/-0 | ⬤ | ⬤ | ⬤ | ⬤ | ⬤ |
11.5 | 330 | +0.011/-0 | ⬤ | ⬤ | ⬤ | ⬤ | ⬤ |
12.0 | 330 | +0.011/-0 | ⬤ | ⬤ | ⬤ | ⬤ | ⬤ |
13.0 | 330 | +0.011/-0 | ⬤ | ⬤ | ⬤ | ⬤ | ⬤ |
14.0 | 330 | +0.011/-0 | ⬤ | ⬤ | ⬤ | ⬤ | ⬤ |
15.0 | 330 | +0.011/-0 | ⬤ | ⬤ | ⬤ | ⬤ | ⬤ |
16.0 | 330 | +0.011/-0 | ⬤ | ⬤ | ⬤ | ⬤ | ⬤ |
17.0 | 330 | +0.011/-0 | ⬤ | ⬤ | ⬤ | ⬤ | ⬤ |
18.0 | 330 | +0.011/-0 | ⬤ | ⬤ | ⬤ | ⬤ | ⬤ |
19.0 | 330 | +0.013/-0 | ⬤ | ⬤ | ⬤ | ⬤ | ⬤ |
20.0 | 330 | +0.013/-0 | ⬤ | ⬤ | ⬤ | ⬤ | ⬤ |
24.0 | 330 | +0.013/-0 | ⬤ | ⬤ | ⬤ | ⬤ | ⬤ |
25.0 | 330 | +0.013/-0 | ⬤ | ⬤ | ⬤ | ⬤ | ⬤ |
32.0 | 330 | +0.016/-0 | ⬤ | ⬤ | ⬤ | ⬤ | ⬤ |
Production range: Ø1-Ø80, other dimensions are upon request.
Length tolerance: +1mm/+1.5mm.
Ground tolerance can be upon request.
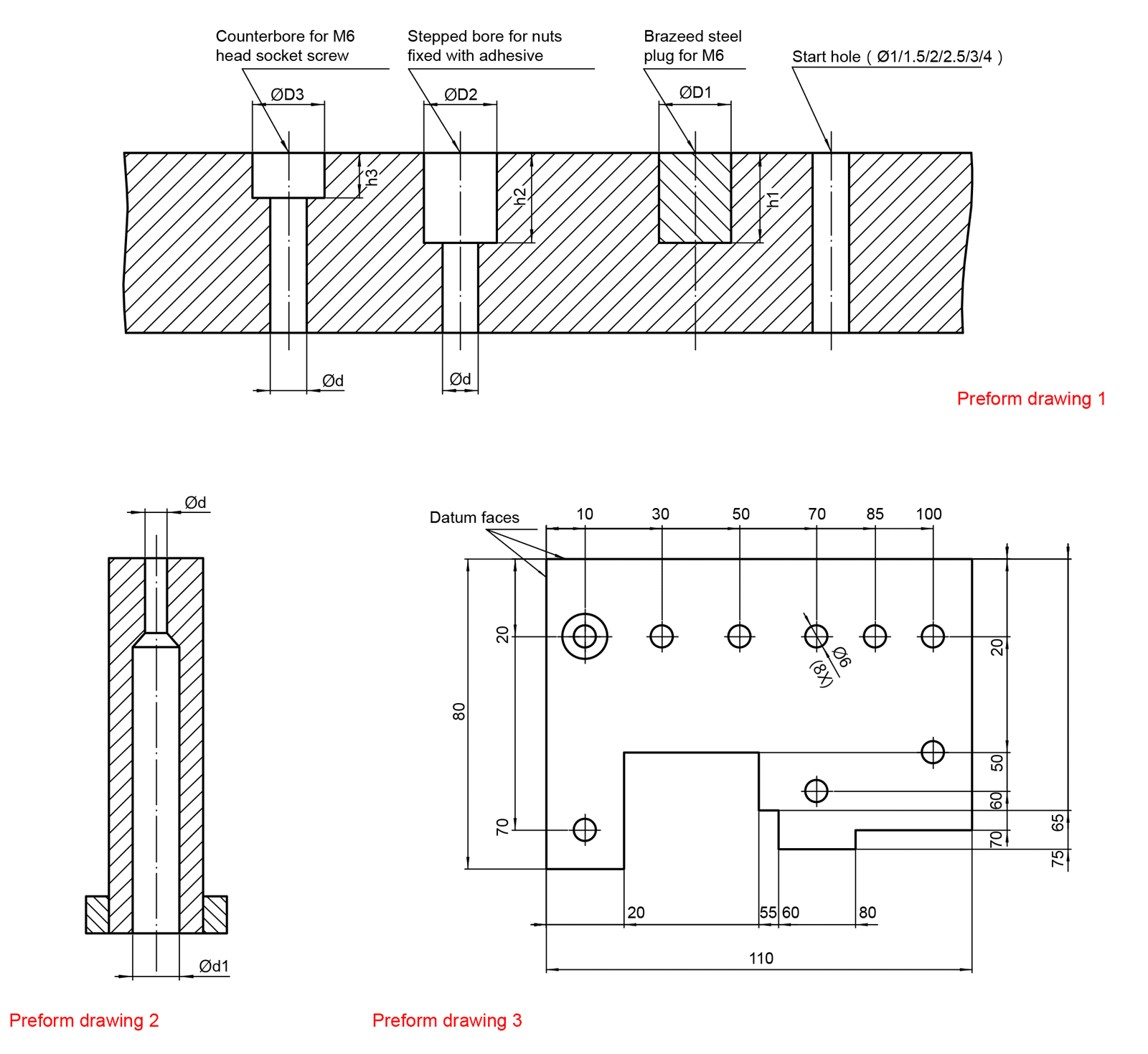
CUSTOMIZED PREFORM FOR STAMPING
For the tool and die industry we exclusively deliver sintered parts which are produced on our state-of-the-art machines by our skilled workers. It is therefore necessary to speak the same “language” with regard to the dimensions indicated in the drawings in order to manufacture products correctly (see illustrations below)
In this context, it is a big advantage for you that you can illustrate the whole specifications, etc. in a simplified way. The parts will then be supplied in accordance with the appropriate tables.
The way of transmitting the drawing represents a significant factor with regard to the time taken to process an order and the quality that is achieved. This is why we are going to use drawing transmission via e-mail to a larger degree. The file format should be .dwg or .dxf and large data amounts should be zipped.







TECHNICAL INFORMATION
We provide customized semi-finished products as well.





Hardness

Hardness in relations to the cobalt content and grain size
Hardness is a material’s mechanical resistance to another harder material when it penetrates it. This value is usually measured by “Vickers Hardness procedure” (ISO 3878) or “Rockwell Hardness Procedure” (ISO 3738). Like wear resistance, hardness also increases with a smaller grain size and lower cobalt content. Therefore, hardness is often used as a reference for wear resistance.
- Ultrafine grades
- Submicron grades
- Fine / Medium grades
- Coarse grades
Transverse Rupture Strength

TRS in relation to the grain size and the cobalt content
Testing “Transverse Rupture Strength” is a common procedure to analyze mechanical properties of carbide. Based on ISO 3327 standard, a material with fixed length is placed on two contact points and certain stress is given in the middle until the material breaks. The average value of several tests is then determined as T.R.S. (Transverse rupture strength)
- Ultrafine grades
- Submicron grades
- Fine / Medium grades
- Coarse grades
Fracture toughness

Fracture toughness in relation to the grain size and the cobalt content.
When a material is exposed to external stress, this leads to mechanical tensions. Under these circumstances, both strength and ductility of the material indicate the basis for the concept of toughness. In other words, toughness is defined as the capacity to resist fracture or rupture growth. “Palmqvist Method” is frequently applied to determine the toughness value, KIC.
- Ultrafine grades
- Submicron grades
- Fine / Medium grades
- Coarse grades
Compressive strength

Compressive strength in relation to the grain size and the cobalt content.
One of the most remarkable properties of carbide is the extremely high compressive strength under uniaxial stress. This precious property is applied to almost all applications. When metal binder content decreases and the grain size decreases, the compressive strength increases. A small grain carbide with a low metal binder content typically has a compressive strength of almost 7,000 N/mm2. The compressive strength decreases when the temperature increases. The degree of plastic deformation increases notably with the temperature, so that the results are variable when temperature is high.
- Submicron grades
- Fine / Medium grades
- Coarse grades
- Extra-coarse grades
Thermal conductivity

Thermal conductivity in relation to the temperature of various microstructures and grain sizes.
High y-phase content Thermal conductivity plays an important role in carbide applications; it determines the temperature in the wear areas and has a large influence on the carbide’s thermal fatigue resistance and resistance to thermal fluctuations. The thermal conductivity of carbide is around twice as high as that of non-alloyed steel.
- Submicron grades
- Fine / Medium grades
- High y-phase content
- Coarse grades
- Extra-coarse grades
- Low y-phase content
Modulus of elasticity

Modulus of elasticity WC-co carbides.
The modulus of elasticity indicates the resistance of a material against elastic deformation. The modulus of elasticity for carbide is 2 to 3 times higher than in steel. It will increase linearly with decreasing metal binder content.

Magnetic saturation
Carbides with cobalt as a metal binder are ferromagnetic. If a ferromagnetic material is exposed to a magnetic field strength H, the magnetic flux density B in this material increases (blue line). The flux density decreases when the field strength rises, until maximum saturation is achieved.
Coercive force
Coercive force is one of the properties of a magnetic material. The inverse field strength HC which is necessary to reduce the magnetic flux density to zero, or to “de-magnetize” the material, is defined as coercive force. Coercive force is usually measured in oersted (Oe) or ampere/meter (A/m) units and is denoted HC. It can be measured using a B-H analyzer or magnetometer.
GRADE PROPERTY & RECOMMENDATION
Grade Size | ISO code | CO | Density | Hardness | T.R.S. | Fracture toughness Kic | ||||
---|---|---|---|---|---|---|---|---|---|---|
(±0.5%) | (g/cm3) | HRA | HV30 | Kgf/mm2 | Mpa | MPa*m1/2 | ||||
CORROSION FREE GRADE | ||||||||||
Submicron [0.5-0.8µm] | K20~K30 | 8.2 | 14.56 | 92.0 | 1610 | 350 | 3430 | 9.5 | ||
K40 | 13.0 | 14.08 | 90.5 | 1410 | 350 | 3430 | 12.0 | |||
Medium [1.3-2.5µm] | K30~40 | 11.5 | 14.18 | 90.7 | 1430 | 340 | 3330 | 11.5 | ||
K40 | 12.5 | 14.18 | 89.8 | 1330 | 350 | 3430 | 12.0 | |||
Coarse [2.5-6.0µm] | K30~40 | 12.5 | 14.18 | 88.8 | 1240 | 350 | 3430 | 17.0 | ||
REGULAR GRADE | ||||||||||
Ultrafine [0.2-0.5µm] | K10~K20 | 11.0 | 14.15 | 92.3 | 1660 | 380 | 3750 | 9.0 | ||
Submicron [0.5-0.8µm] | K10~K30 | 13.0 | 14.15 | 90.0 | 1355 | 350 | 3330 | 12.0 | ||
K20~K30 | 80 | 14.67 | 92.2 | 1645 | 330 | 3235 | 10.0 | |||
Fine [0.8-1.3µm] | K40 | 15.0 | 13.95 | 89.3 | 1280 | 340 | 3330 | 13.0 | ||
K20~K30 | 10.0 | 14.46 | 91.0 | 1470 | 340 | 3330 | 12.0 | |||
K30~K40 | 12.0 | 14.27 | 90.3 | 1390 | 350 | 3430 | 12.5 | |||
Medium [1.3-2.5µm] | K30~K40 | 12.0 | 14.30 | 89.3 | 1280 | 340 | 3330 | 13.0 | ||
Coarse [2.5-6.0µm] | K30~K40 | 12.0 | 14.31 | 88.3 | 1200 | 340 | 3330 | 17.0 |
Submicron Grade
[Grade size 0.5-0.8µm]

- For thin metal sheet, copper alloy stamping. Widely used in connector stamping, semi-conductor stamping and electronics stamping industry.
- Newly developed grade mainly for stainless steel and copper alloy high speed stamping. Application include connector stamping, semi-con stamping and electronics stamping. A combined advantage of wear resistance and toughness grade. With spectacular performance in tool life and C.P. Ratio.
- For lead frame stamping and for perform making.
Corrosion Free Submicron Grade
- For stamping 0.6 stainless steel, widely used in Electronics and Automotive connectors and lead frame industry. Good hardness combined with high wear resistance and high toughness properties. Submicron grain size & corrosion resistance that help to maintain a good surface quality and improve material stability & tool precision.
- For thin sheet and copper alloy stamping. Widely used in connector stamping, semiconductor stamping and electronics stamping industry. Submicron grain size & corrosion resistance help to maintain a good surface quality and improve material stability and tool precision.
Ultrafine Grade
[Grade size 0.2-0.5µm]

- For stamping thin copper alloy, lead frame and for making small punches. Ultrafine grade with high wear resistance and homogenous grain size tremendously improves tool life.
Fine Grade
[Grade size 0.8-1.3µm]

- For silicon steel, rotor, stator, iron sheet, aluminum stamping. Fine grain size, highly optimized for general use. A balance between toughness and surface quality.
- For thin electronic plate and copper alloy stamping. For perform making.
- For thin metal sheet and copper alloy stamping.
Medium Grade
[Grade size 1.3-2.5µm]

- For silicon steel, rotor, stator, iron sheet, aluminum stamping. Medium grain size, highly optimized for general application.
Corrosion Free Medium Grade
- Optimized for stamping silicon steel, rotor, stator, Iron sheet and aluminum sheet. Medium grain size & corrosion resistance help to improve tool stability & precision. Good wear and corrosion resistance. Highly optimized for general use.
Coarse Grade
[Grade size 2.5-6.0µm]

- For metal sheet stamping, medium / coarse grain size, high toughness. Highly optimized for general use.
Corrosion Free Medium / Coarse Grade
- Optimized for stamping 0.5-1.5mm metal sheet, iron plate and for strippers purpose. Medium / сoarse grain size & corrosion resistance help to improve tool stability & precision. Good balance of wear resistance and toughness.
Corrosion-resistant carbide

The Diagram shows measured current density potential curves.
Our corrosion-resistant NF grades have become the standard in the tool and die industry.
Maximum metallurgical consistency in combination with a factor 80 reduction in susceptibility and speed of corrosion provide for longer machining times and maximum security as depicted in the graphic showing the NF processes.

The causes for wear can often be determined only through detailed metallurgic examination. We offer this service to our partners in the tool and die industry.

Corrosion is still a topic which must be taken seriously. While in the past years corrosion was mainly associated with wire erosion, today’s increasing demands mean that follow-up processes like further machining operations and handling are now also becoming more and more important. Severe wear in active components is frequently due to corrosive damage.